Class “A” Office Building
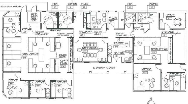
Property Features     Photos     Floor Plan     Aerial View     Demographics (PDF)      Financials (PDF)      Print (PDF)

NAI Capital Bruce A. Hamous, CCIM
Vice President
818-636-8600 tel
bhamous@naicapital.com
CA BRE License #01073432
2555 Townsgate Road
Suite 320
Westlake Village, CA 91361
tel 818 636 8600
www.naicapital.com

No warranty, express or implied, is made as to the accuracy of the information contained herein. This information is submitted subject to errors, omissions, change of price, rental or other conditions, withdrawal without notice, and is subject to any special listing conditions imposed by our principals. Cooperating brokers, buyers, tenants and other parties who receive this document should not rely on it, but should use it as a starting point of analysis, and should independently confirm the accuracy of the information contained herein through a due diligence review of the books, records, files and documents that constitute reliable sources of the information described herein.